コンビニ不動産株式会社 > (賃貸)地域から探す > 福島市 > 陽だまりの杜

陽だまりの杜

陽だまりの杜

所在地 交通 建物
福島県福島市渡利字沖町

東北本線福島」駅 

「沖町中央」バス停下車 徒歩2分

築20年
1階建
木造

物件情報

 | 陽だまりの杜

※写真や図と実際の現状とが異なる場合は現状を優先させていただきます

  •  | 陽だまりの杜
  •  | 陽だまりの杜
  •  | 陽だまりの杜
  •  | 陽だまりの杜

※ご覧になりたい写真をクリックすると
拡大されて表示されます。

コメント

情報の見方

陽だまりの杜 の物件概要

【マンション】

所在地 福島県福島市渡利字沖町
交通
賃料 7.4万円 管理費・共益費 3,000円
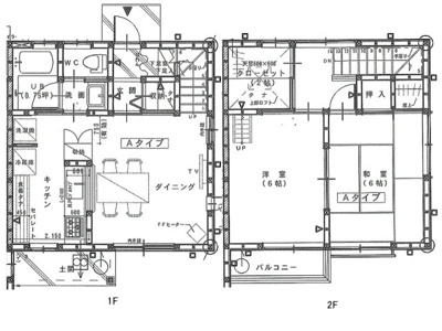
面積 59.62㎡ 築年月(築年数) 2006年 3月 ( 築20年 )
種別/構造 マンション / 木造 階建 1階建
取扱会社
  • コンビニ不動産 株式会社
  • 福島県福島市南矢野目字徳元田北6-9 
  • TEL:024-573-6001
  • 福島県知事 (4) 第2681号
  • 公益社団法人 福島県宅地建物取引業協会

※地図上に表示される物件の位置は付近住所に所在することを表すものであり、実際の物件所在地とは異なる場合がございます。

陽だまりの杜 へのお問い合わせは コンビニ不動産 株式会社まで

024-573-6001

〒960-0112

福島県福島市南矢野目字徳元田北6-9 

10:15~17:30  定休日:火曜日 ・ 水曜日

お問い合わせ 来店予約する

陽だまりの杜の空室情報

所在階 賃料 管理費・共益費 敷金/礼金/保証金/償却/敷引 間取り 面積 詳細 検討リスト
1.2階 7.4万円 3,000円 7.4万円/ 0万円/ -/ -/ - 2
59.62㎡ 詳細を見る 追加する

陽だまりの杜へのお問い合わせ

必要項目の入力

0/0
必須項目完了

確認画面へ
お進み下さい

0/0
必須項目完了

確認画面へ
お進み下さい

必須

お名前

任意

メールアドレス

必須

携帯番号

必須

希望連絡方法

必須

内容

【陽だまりの杜へのお問い合わせ】

利用規約及びプライバシーポリシーを必ずお読みください。左記内容に同意いただいた場合は、確認画面へお進み下さい。

未入力項目があります

▼ご希望の物件をお探しします
物件リクエスト

おすすめ物件

宮代天神前住宅の画像

宮代天神前住宅

福島県福島市宮代字天神前

東北本線「東福島」駅 徒歩8分

築34年

ナカノアパートの画像

ナカノアパート

福島県福島市北ノ前

東北本線「東福島」駅 

築40年

南沢又アパートの画像

南沢又アパート

福島県福島市南沢又字中條

福島交通「泉」駅 徒歩13分

築31年

コア・MATSUYA Ⅲの画像

コア・MATSUYA Ⅲ

福島県福島市岡部字岡部

東北本線「福島」駅 

築23年

会社概要

会社画像
コンビニ不動産 株式会社
  • 〒960-0112
  • 福島県福島市南矢野目字徳元田北6-9 
  • TEL/024-573-6001
  • FAX/024-573-6006
  • 福島県知事 (4) 第2681号

トップへ戻る

来店予約