こもれ陽の杜
物件情報
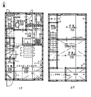
こもれ陽の杜 の物件概要
【マンション】※地図上に表示される物件の位置は付近住所に所在することを表すものであり、実際の物件所在地とは異なる場合がございます。
こもれ陽の杜の空室情報
00件
最近見た物件
00件
検討リスト
コンビニ不動産株式会社 > (賃貸)地域から探す > 福島市 > こもれ陽の杜
こもれ陽の杜
物件情報
こもれ陽の杜 の物件概要
【マンション】※地図上に表示される物件の位置は付近住所に所在することを表すものであり、実際の物件所在地とは異なる場合がございます。
こもれ陽の杜の空室情報

福島市の町名から探す